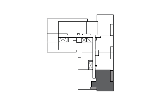
PH1

3 Bed+2.5 Bath
+Balcony
Approx. Sq. Ft. - 1,690
Balcony Approx. Sq. Ft. - 190
Unit 301. 501, 801, PH1
Unit location within building
Unit 501, 801, 1001, PH1

The specifications, furniture, features and amenities listed herein are for illustrative purposes only, and shall not be relied upon as the basis of any contract, warranty or other claim. Illustrations are artists’ conceptions and may vary in precise detail from the item depicted. Prices are subject to change without notice. All square footages and dimensions are approximate, and plans are not to scale. All such information is subject to change at any time without notice. Floor plans, renderings and all marketing materials are copyrighted and may not be used without permission. © 2026 All Rights Reserved